电话:0577-67989360

J67Y-32循环泵出口阀

发布时间: 浏览量:
一、概述
  循环泵出口阀型号为J67Y,其具备截止阀止回阀的功能,不仅可以关闭,还能防止介质倒流,当锅炉发生故障,靠介质压力快速将阀门关闭,对锅炉起到安全保护作用。常安装在锅炉循环泵出口处。J67Y-32循环泵出口阀适用于电力工业,石油工业,化学工业,石油化工装置等场合。适用介质有蒸汽、油品、腐蚀性介质及工作温度范围可在-29℃-570℃等管路上。
二、结构原理及特点
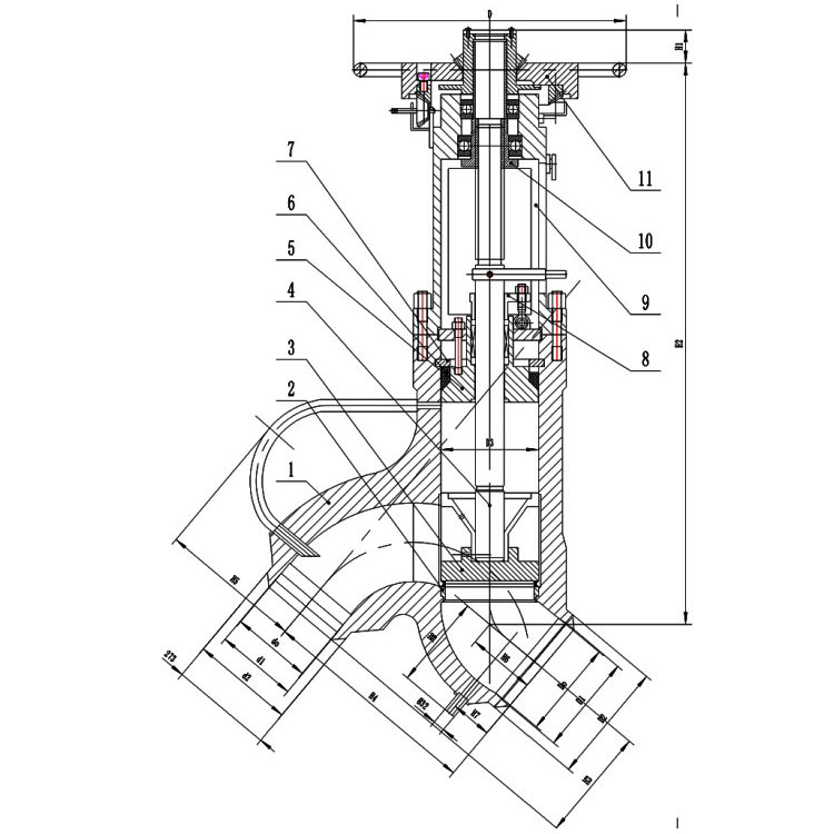
  J67Y-32循环泵出口阀主要由阀体、阀座、阀瓣、阀杆、四合环、阀盖、手轮等等零件组成。本阀门的阀体和支架为铸造而成。阀盖为内压自封式结构,并采用WC6、WC9、C5、CF8M。和管道连接为对接焊连接,阀座密封圈镶入阀体,材料和阀体相同,密封面堆焊司太立6号硬质合金。阀瓣和阀体采用相同的材料,密封面堆焊司太立6号硬质合金;阀瓣与阀杆连接采用止回式,阀瓣本身设有导向装置,可保证与阀座密封面正确吻合。阀杆的材料采用渗氮钢,阀杆带有上密封结构,与阀盖的上密封座相配合,全开时,上密封起作用可保护填料;阀杆密封采用填料为柔性石墨编织填料,横向纤维与纵向纤维交替放置,用填料压套和填料压板压紧就可保证密封。阀盖采用内压自封式,介质压力越高,密封性能越好。阀盖9由密封环5、压紧圆环6、对开圆环7夹紧密封,然后由阀盖拉紧螺栓拉紧。阀杆螺母安装在支架上,用阀杆螺母压盖压紧;在阀杆螺母的台肩处,上下各装有推力轴承,并安装有油嘴,可注油润滑,这样可使开启或关闭时操作省力。手轮与阀杆螺母的连接借助中间套;中间套与阀杆螺母连接采用平键;中间套与手轮的连接采用钢球、弹簧和顶丝,并用螺母锁紧,这样一来转动手轮就可开启或关闭阀门。但开启力矩与关闭务矩过大时,手轮就会自动打滑,起过载保护作用。
(一)、此阀特点
  1、J67Y-32循环泵出口阀为角式布置,其结构型式是截止-止回阀型式。循环泵出口阀采用压力自紧式密封。循环泵出口阀阀瓣和阀座密封面是钴基硬质合金由等离子喷焊而成,硬度高,耐磨,抗冲刷,使用寿命长。循环泵出口阀带有位置指示开关。当阀杆提升到全行程的95%时,接点接通,泵开始启动,介质从阀瓣下面流入。
  2、J67Y-32循环泵出口阀的注意事项:因为焊接坡口与阀门的密封面很近,为防止阀座变形,在现场循环泵出口阀与循环泵和管道焊接时必须把阀门关严,焊接后等待全部冷却后热应力消除才能打开。
    3、阀瓣在阀体内作升降运动,运动前先将阀杆提起,靠介质压力将阀门自动打开。当锅炉发生故障时,阀门入口压力降低,介质倒流将阀门快速关闭。
  4、阀杆表面经抗蚀性氮化处理,具有良好的抗腐蚀性的抗擦伤性,手轮顺时针旋转为关闭阀门。
    5、产品结构长度按国家标准GB/T15188.1设计制造,焊接坡口尺寸按GB12224标准规定或按用户配管尺寸要求。